Homes and Barracks: Shaping Village Life in Colossus

Housing in Colossus
In earlier builds of Colossus, housing was handled through a single type of building. This house could either be dedicated to one family or opened up for multiple workers. While the idea gave players some flexibility, in practice it created problems. Managing residents required a lot of micro-clicking, and the concept of swapping families in and out of their homes didn’t sit well thematically—after all, evicting a poor family just to optimize efficiency feels both clunky and out of place.
To address this, we’ve decided to separate housing into two distinct building types:
Family House – A permanent home for a single family.
Worker Barracks – Shared living space designed for individual workers.
This change makes village management more intuitive. Players must now balance the number of houses and barracks according to their settlement’s needs. It also opens up exciting possibilities for future updates—such as families being able to save resources and eventually build their own home within the village.
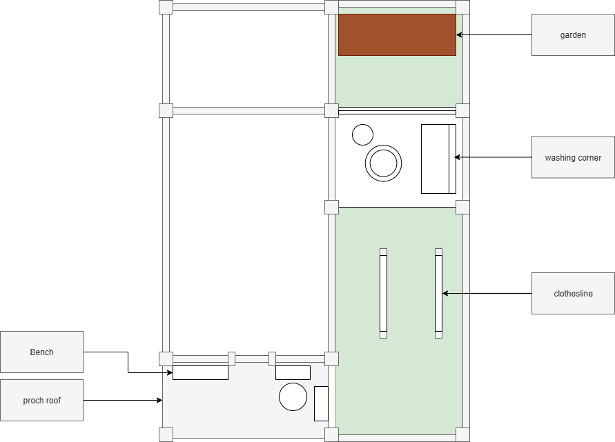
Unique Upgrade Paths
Both building types will feature their own upgrade systems:
- Family House Upgrades: These focus on improving quality of life. Expect additions such as a small garden, a private shrine, or a sturdier fireplace. Houses can also grow in size and prestige, reflecting the family’s social rise within the settlement.

- Barracks Upgrades: These are more pragmatic, centered around functionality and worker satisfaction. Upgrades may include extra beds, an outdoor washing station, or even small comforts like a bench on the porch. While simple, such improvements can greatly influence worker morale and, in turn, the overall migration attraction of your village.

Looking Ahead
While these upgrades are still under development and won’t be available in the next build, the groundwork is already being laid. Housing will become a key pillar of village life in Colossus, shaping not only how families thrive but also how workers contribute to the growth of your settlement.